Maison individuelle modèle : SELVI

modèle de maison individuelle SELVI amiens et somme
Ce Modèle d'une surface habitable de 110 m².
à partir de

54000 €uros


Cette formidable maison en L étudié pour les familles nombreuses elle offres:

**  4 grandes chambres

** 2 Salles de bains

** 2 WC

** Garage en décrochement

Encore plus de volume et surface en optant pour :

** Un sous sol complet ou Partiel pour la mise en place, d'une buanderie, une salle de jeu, une cave à vin

Choisissez le PACK DE FINITION de votre choix:

Prêt à finir ou clé en main c'est vous qui choisissez.

image sur la RT2012

La RT2012 en vigueur depuis le 1 Janvier 2013, est renforcée afin que toutes les constructions neuves présentent, en moyenne, une consommation d’énergie primaire inférieure à 50 kWh/m²/an.

Tous nos modèles sont conformes à la RT2012.

Plans à personnaliser selon vos goûts et votre budget. Projet à définir ensemble.


plan du rdc de la maison inviduelle modèle SELVI

Plan du RDC

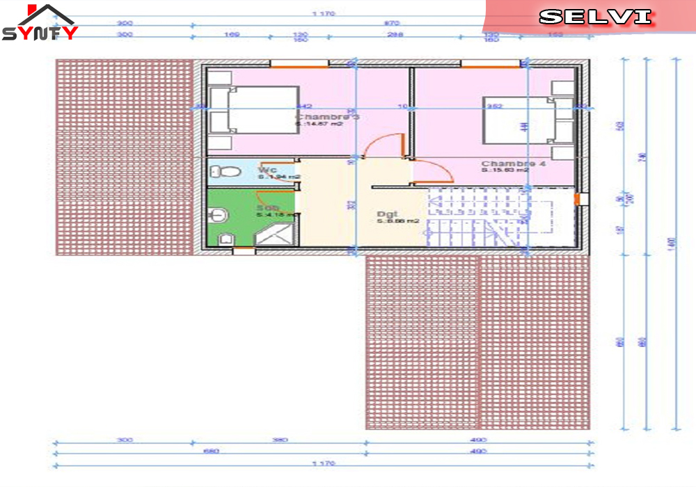
plan de l'étage de la maison inviduelle modèle SELVI

Plan de l'étage




Gagner des cadeaux ou des remises sur vos travaux en partageant nos pages plus d'infos.

Partager :






Choisissez le pack de finition de votre projet

Choisissez le pack de finition qui vous convient Les PACKS de la société SYNFY sont crées pour faire des économies ou vous libérer de toutes les contraintes. en fonction du pack choisi, nous pouvons prendre en charge la totalité de vos travaux de construction, ou vous laisser mettre la main à la pâte et faire de sacrés; économies.

Construire sa maison individuelle avec la société SYNFY, c'est profiter de plus de 20 ans d'expérience dans le domaine de la construction, la construction d'un pavillon d'une villa, d'une maison, que ce soit en construction traditionnelle, ou avec toiture-terrasse, végétalisé, revêtement en enduit monocouche, ou avec une isolation thermique par l'extérieur, nous étudions ensemble vos envies, vos désirs, pour construire la maison qui vous ressemble.

Nous aménagerons ensemble vos pièces, choisirons l'emplacement des cloisons, étudierons l'isolation thermique acoustique, les revêtements de sols, la qualité de vos menuiseries en bois, PVC ou alu, selon votre budget économique ou haut de gamme, nous apportons toutes les solutions, pour concevoir, et réaliser votre projet de devenir propriétaire de votre propre maison.

Question financement, nos partenaires sont là pour vous apporter des solutions de financement adaptées à votre situation. Votre maison est unique, votre pavillon vous ressemblera elle reflètera votre vie, vos envies, et parce que votre projet vous tient à cœur, vous voulez participer à l'un des plus importants projets de vie, c'est pourquoi vous pouvez faire des économies, en participant à la construction de votre maison, devenez autoconstructeur, réalisez vous-même une partie des travaux..
logo société synfy



Restez Connecte